К 5
Характеристики изделия:
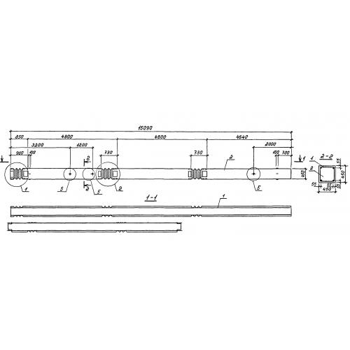
| Параметр | Значение |
|---|---|
| длина | 15090 мм |
| ширина | 450 мм |
| высота | 450 мм |
| масса | 7600 кг |
| нормативный документ | ГОСТ 27108-86 |
Цена:
Рассчитать стоимостьК 5 Колонны ГОСТ 27108-86.
| Параметр | Значение |
|---|---|
| длина | 15090 мм |
| ширина | 450 мм |
| высота | 450 мм |
| масса | 7600 кг |
| нормативный документ | ГОСТ 27108-86 |
К 5 Колонны ГОСТ 27108-86.
