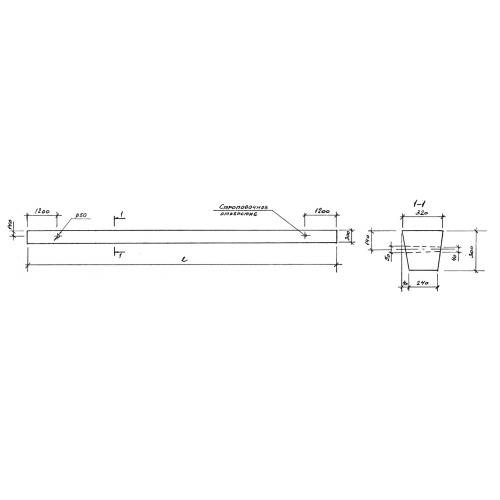
5БФ 120 балки фундаментные

Чертеж изделия:
Характеристики изделия:
ПараметрЗначение
длина11950 мм
ширина320 мм
высота300 мм
масса2500 кг
нормативный документСерия 1.015.1-1.95

5БФ 120  Балки фундаментные Серия 1.015.1-1.95.