8ПП 30 перемычки плитные

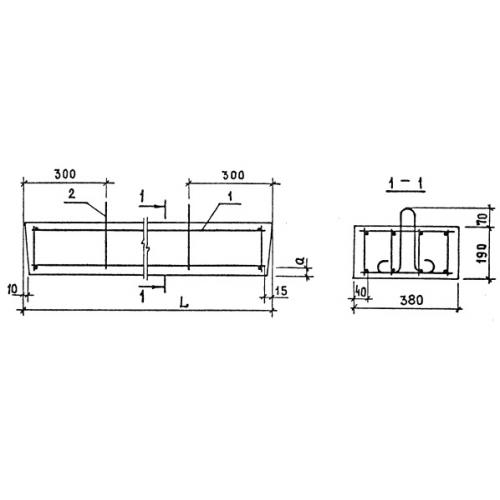
Чертеж изделия:
Характеристики изделия:
ПараметрЗначение
длина2980 мм
ширина380 мм
высота190 мм
масса538 кг
нормативный документСерия 1.038.1-1

8ПП 30  Железобетонные перемычки плитного типа Серия 1.038.1-1.