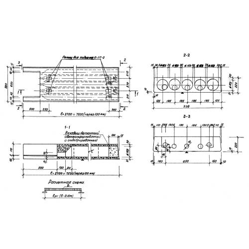
КНК 73.10
Характеристики изделия:
| Параметр | Значение |
|---|---|
| длина | 7300 мм |
| ширина | 990 мм |
| высота | 220 мм |
| вес | 2075 кг |
| серия | 1.141 КР-1 |
Цена:
Рассчитать стоимостьКНК 73.10 Панель с консольными выпускными ребрами. Панели перекрытия многопустотные по серии 1.141 КР-1.
