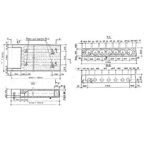
КНК 72.15
Характеристики изделия:
| Параметр | Значение |
|---|---|
| длина | 7200 мм |
| ширина | 1490 мм |
| высота | 220 мм |
| вес | 3182 кг |
| серия | 1 |
Цена:
Рассчитать стоимостьКНК 72.15 Панели с круглыми пустотами с консольными выпускными ребрами по серии 1.141.1 КР-3.
| Параметр | Значение |
|---|---|
| длина | 7200 мм |
| ширина | 1490 мм |
| высота | 220 мм |
| вес | 3182 кг |
| серия | 1 |
КНК 72.15 Панели с круглыми пустотами с консольными выпускными ребрами по серии 1.141.1 КР-3.
