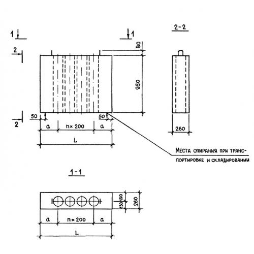
ВК 11.10

Чертеж изделия:
Характеристики изделия:
ПараметрЗначение
длина1080 мм
ширина260 мм
высота950 мм
вес253 кг
серия1.234.8-1

ВК 11.10 Вентиляционные блоки крышные по серии 1.234.8-1.