ПК 58.18

Чертеж изделия:
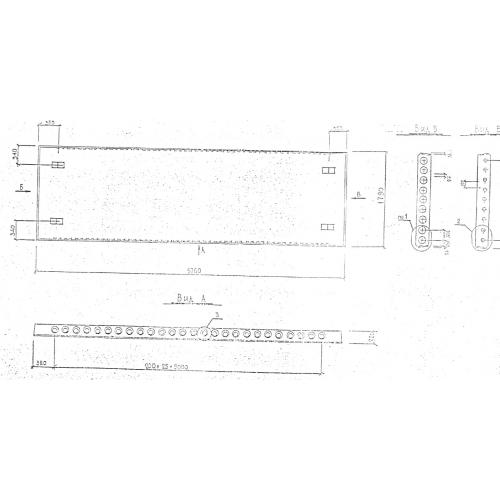
Характеристики изделия:
ПараметрЗначение
длина5760 мм
ширина1790 мм
высота220 мм
вес3225 кг
серия1.241.1 КЛ-3

ПК 58.18 Панели перекрытия многопустотные по серии 1.241.1 КЛ-3.