П 60.15

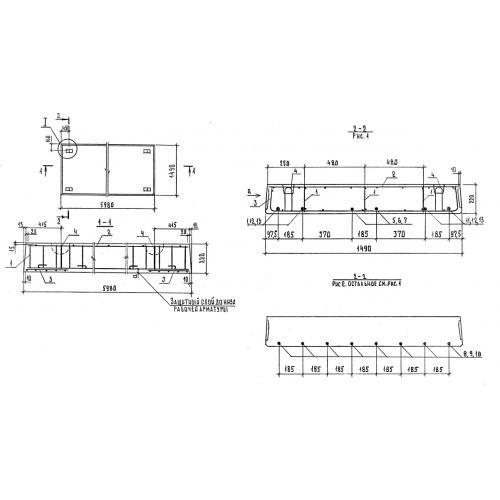
Чертеж изделия:
Характеристики изделия:
ПараметрЗначение
длина5980 мм
ширина1490 мм
высота220 мм
вес4840 кг
серия1.243.1-5

П 60.15 Панели перекрытий беспустотные по серии 1.243.1-5.