П 7

Чертеж изделия:
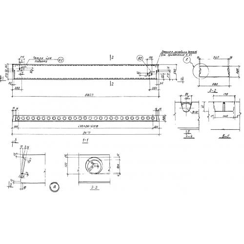
Характеристики изделия:
ПараметрЗначение
длина5650 мм
ширина590 мм
высота220 мм
вес1900 кг
серия1.440-1

П 7 Плиты ребристые по серии 1.440-1.