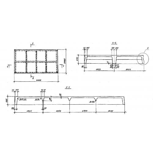
1П 1 Плиты ребристые из тяжелого бетона

Чертеж изделия:
Характеристики изделия:
ПараметрЗначение
длина5550 мм
ширина2985 мм
высота400 мм
масса4850 кг
нормативный документСерия 1.442.1-1.87

1П 1 Плиты перекрытия и покрытия ребристые из  тяжелого бетона Серия 1.442.1-1.87.