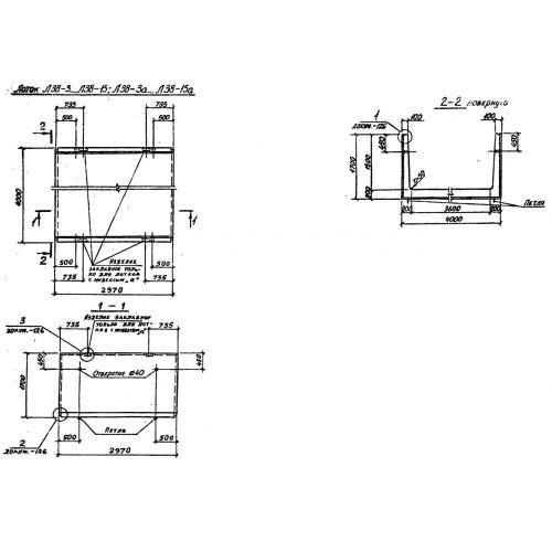
Л 38/2 лотки

Чертеж изделия:
Характеристики изделия:
ПараметрЗначение
длина2970 мм
ширина4000 мм
высота1700 мм
масса9380 мм
нормативный документСерия 3.006.1-2/87

Л 38/2 Лотки теплотрасс Серия 3.006.1-2/87.