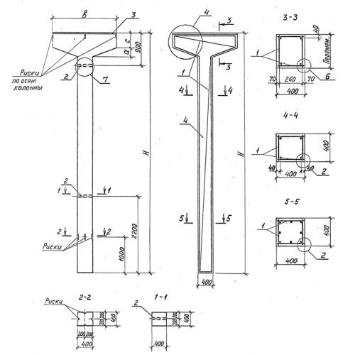
К 17 колонна сборная

Чертеж изделия:
Характеристики изделия:
ПараметрЗначение
длина6200 мм
ширина1220 мм
высота1200 мм
масса3000 кг
нормативный документСерия 3.015-1/92

К 17  Колонны сборные Серия 3.015-1/92.