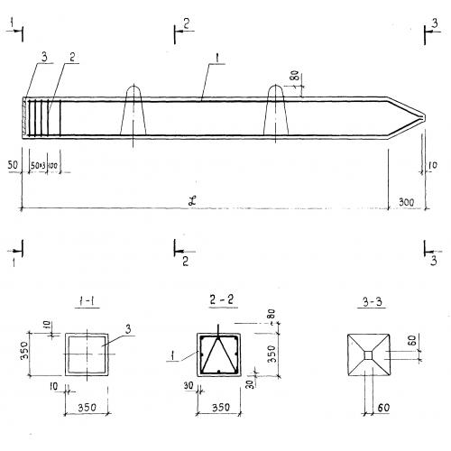
С 12-35

Чертеж изделия:
Характеристики изделия:
ПараметрЗначение
длина12300 мм
ширина350 мм
высота350 мм
вес3730 кг
серия3.015-5/86

С 12-35 Сваи прямоугольного сечения по серии 3.015-5/86.