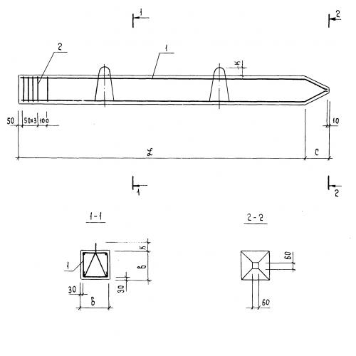
С 6-35

Чертеж изделия:
Характеристики изделия:
ПараметрЗначение
длина6300 мм
ширина350 мм
высота350 мм
вес1880 кг
серия3.015-5/86

С 6-35 Сваи прямоугольного сечения по серии 3.015-5/86.