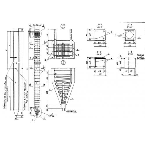
С 80-30

Чертеж изделия:
Характеристики изделия:
ПараметрЗначение
длина8000 мм
ширина300 мм
высота300 мм
вес1800 кг
серия3.501.1-153

С 80-30 Сваи с прямоугольным сечением по серии 3.501.1-153.