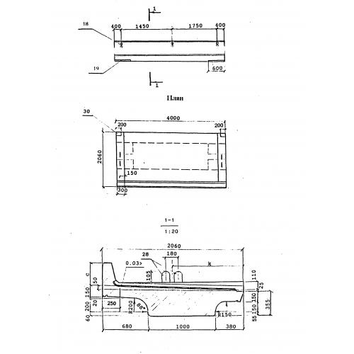
БП 1.40

Чертеж изделия:
Характеристики изделия:
ПараметрЗначение
длина4000 мм
ширина2060 мм
высота980 мм
вес7600 кг
серия3.501.1-175.93

БП 1.40 Плитные балки по серии 3.501.1-175.93.