ФБ-3

Чертеж изделия:
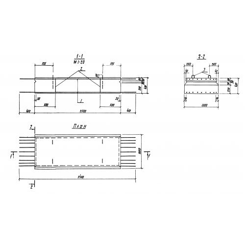
Характеристики изделия:
ПараметрЗначение
длина3400 мм
ширина1000 мм
высота450 мм
масса2730 кг
нормативный документСерия 3.820.1-29

ФБ-3 Флютбетные блоки по Серии 3.820.1-29.