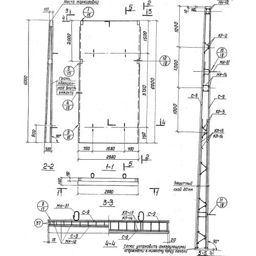
ПС 300-600-32 Панель стеновая консольная

Чертеж изделия:
Характеристики изделия:
ПараметрЗначение
длина2980 мм
ширина6000 мм
высота320 мм
масса10230 кг
нормативный документСерия 3.900.-3

ПС 300-600-32 Панели стеновые консольные для прямоугольных сооружений рядовые по Серии 3.900.-3.