К 2

Чертеж изделия:
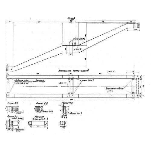
Характеристики изделия:
ПараметрЗначение
длина10130 мм
ширина260 мм
высота3360 мм
масса3200 кг
нормативный документТП 501-166

К 2  Косоуры по Типовому проекту ТП 501-166.